·ÎµùÁßÀÔ´Ï´Ù...

 ¹é¿¬Á¦°Å½Ã½ºÅÛ

¢Á °¡½Ã°øÇØÀÎ ¹é¿¬À» È¿°úÀûÀ¸·Î Æ÷Áýó¸®ÇÏ¸ç ¹é¿¬³» À¯Çع°ÁúÀ» ¾ïÁ¦
¢Á ±â ¼³Ä¡µÈ ¹è±â¼³ºñÀÇ È°¿ëÀ» ÅëÇØ ÅõÀÚºñ°¡ Àú·ÅÇÏ¸ç Æó¿­À» ȸ¼öÇÏ¿© ¿ëµµº° °øÁ¤ ¿ë¼ö ¹× ¼ø¼ö °¡¿­ÇÏ´Â ½Ã½ºÅÛ


 

 

  • ¢¹ º» ¿¡³ÊÁö ȸ¼ö¿ë ¿­±³È¯±â´Â °¢ »ê¾÷°øÀåÀÇ ¹è°¡
  •      ½º ¹èÃâºÎ¿¡ ¼³Ä¡
  •  
  • ¢¹ ¿¡³ÊÁö ȸ¼ö¿ë ¿­±³È¯±â´Â Àá¿­ ¹× Çö¿­±³È¯ ±â°¡
  •      µ¿½Ã¿¡ ÀåÂøµÈ º¹ÇÕÇüÅÂÀÇ ¿­±³È¯±â
  •  
  • ¢¹ ¹è°¡½ºÀÇ ¿­¿¡³ÊÁö¸¦ Àá¿­ ¹× Çö¿­±³È¯ ¹æ½ÄÀ¸·Î
  •      È¸¼öÇÏ¿© ÀçȰ¿ë °¡´É
  •  
  • ¢¹ Àá¿­±³È¯À¸·Î ÀÎÇÏ¿© ÀÀÃà¼ö ȸ¼ö°¡ °¡´ÉÇϸç, ÀÌ
  •      ·Î ÀÎÇÑ ÆÄ¿ï¸µ Çö»óÀÌ ÀúÇÏ
  •  
  • ¢¹ °íÈ¿À²ÀÇ ¿¡³ÊÁö ȸ¼öÈ¿°ú·Î ÀÎÇÑ ¹é¿¬Àú°¨ È¿°ú
 
  • ¡á ȯ°æ¹®Á¦ °³¼±
  • ¢¹ ¼öÁõ±â ³» °¢Á¾À¯Çع°Áú °¨¼Ò
  • ¢¹ ¾ÇÃë¹× ´ë±â¹æÃâ·Î ÀÎÇÑ ÁÖº¯¿À¿°¹ß»ý¹æÁö-¼öÁõ±â·Î ¹Î¿ø
  •      ¹ß»ý ¹æÁö
  •  
  • ¡á ¿¡³ÊÁö Àý°¨
  • ¢¹ ¹è±â¿­À» »ç¿ëÇÑ ¿­Ç³ ¹× ¿Â¼ö¹ß»ý
  • ¢¹ ¹è±âÀÀÃà¼ö »ç¿ëÀ¸·Î ¿ë¼öÀý°¨(CO2Àú°¨)
  •  
  • ¡á °æÁ¦¼º
  • ¢¹ ±â ¼³Ä¡µÈ ¹è±â¼³ºñ Àç»ç¿ëÀ» ÅëÇÑ Àú·ÅÇÑ ÅõÀÚºñ
  • ¢¹ ±âÁ¸ ¹è±âÆÒ ¹× ¸ðÅͺÎÇÏÁõ°¡ ÃÖ¼ÒÈ­
  •    (±âÁ¸ FanºÎÇϺ¯µ¿À² 5%À̳»)
  • ¢¹ ¹è¿­È¸¼ö¿­·®À¸·Î ÅõÀÚºñȸ¼ö
  •     (Steam´Ü°¡ 40,000±âÁØ ÃÖÀå 2³â³» ȸ¼ö°¡´É)
 

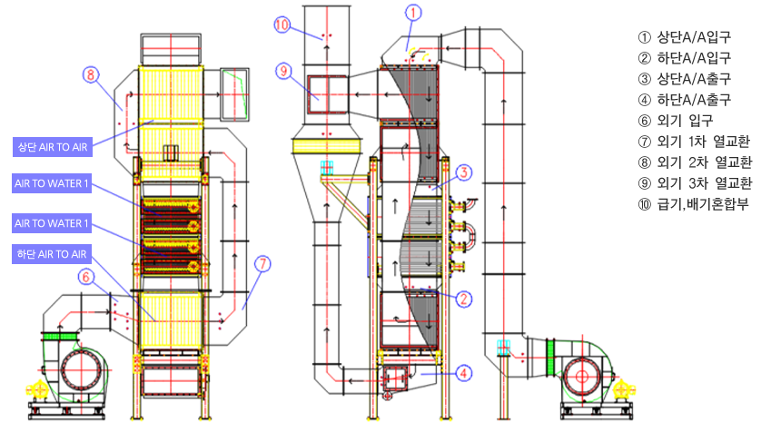
 Air/Air ¹× Air/Water ¿­±³È¯±â¸¦ ÀÌ¿ëÇÑ ¹é¿¬Á¦°Å ¼³ºñ °³·«µµ


 

 Gil Vapor Removal System

 

 PILOT TEST

  • ¢¹ ½ÇÇèÁ¶°Ç : Stack : 80¡É, 150g/kg, ¿ÜºÎ°ø±â : 12¡É, RH 77%
  • ¢¹ ½ÇÇèÀå¼Ò : ±æ»ê¾÷ ½ÇÇ赿
 

 ACTUAL

 

 ACTUAL TEST

  • ¢¹ ½ÇÇèÁ¶°Ç : Stack : 80¡É, 150g/kg, ¿ÜºÎ°ø±â : 5¡É, RH 90%
  • ¢¹ ½ÇÇèÀå¼Ò : ¾Æ¼¼¾ÆÁ¦Áö(½ÃÈ­°øÀå)
 

 ACTUAL DATA

 

 ½ÇÁ¦µ¿¿µ»ó

  •          ¾Æ¼¼¾ÆÁ¦Áö ½ÃÈï°øÀå
  •          ¢¹ 11/24 ¿Ü±â¿Âµµ : 11C RH : 56.1%                                           ¢¹ 12/27 ¿Ü±â¿Âµµ : -4C RH : 58%
                         
 
 

 ¾ÇÃëÁ¦°Å


 TEST

Disclaim : Oder test use only pilot test. Therefore, the result use to reference and data result will be change test material condition.

top